重量物船が荷役を行うには、下準備が非常に大切です。Stowage Plan の他に、まずLifting
Planを作り、資材を用意しなければなりません。
そのためには、基礎的な知識が必要です。
1)どうしたら吊り合って上がる?
2)各使用資材の強度はどうして決める?
3)張力の増加、または、使用方法による減衰は?
4)クレーンはどこまで巻けるか?
5) カンザシはつけるか?
6)傾斜角とGM減少計算は?
などです。Lifting Planには、これらの要件が入っていなくてはならない。
簡単な計算ですけど、条件が増えればちょっとだけ複雑になっていきます。昔はこういう計算を本船上の航海士が行うのが主流でしたが、重量物船の履歴が5-10年もあるような日本人はほぼもういませんし、陸上から支援する形となっています。
|
 |
| 重量物船とLifting Plan |
Lifting Planを一基描くのに、半日から1日もかかって丁寧に貨物を描写して遊んでいる者がいます。大まかな形状と特徴だけをとらまえていればよいのであって、「無駄な事に時間を要すな」ということになります。趣味はお家でやる。
忘れてはならない、Lifting PlanのメインはSlingである。上図のような物で十分だ。仕事にはそれにかかる適切な時間というものがあります。Lifting Plan は、一基当たり15-30分程度で描く(計算別)のが妥当と私もよく叱られた。f^_^;
出張レポートに丸1日かかりっきりなんてのと同じですね。気を付けて下さい。 |
1.バランス。必ず平衡して吊り上げなけれなならない。
重量物荷役で最も重要なことは、貨物を平衡して揚げることです。10tや20tの貨物ではないので、不釣り合いに揚げたり下したりすると、甲板や受けトレーラーの局部に荷重をかけることになって、事故につながります。
|
 |
左図のような貨物を吊り上げるとします。
(貨物はSide Viewです。)
向かって左側のSling位置は8mで変わらないものとして、@〜CのSlingのうち、貨物を平衡に吊り上げることができるのはどれと、どれですか?
画像にマウスオンすると、回答がロールオーバーします。
理科です! |
|
いかがですか? 正解されましたか?
フック位置が貨物の・・・・・にある限り、・・・・・、必ず貨物を平衡して吊り上げることができます。これは・・・・・でも同じです。
ただし、・・・・・のSlingにかかるそれぞれの重量は変化します。(図表示の重量は、Sling角度による張力変化を考慮していません)
左右@〜Cのトン数を対比してください。このようになります。・・・・・位置で吊れば、・・・・・で吊れます。これは4mでも6mでも、・・・・・位置で吊るなら同じですね。
しかし、片方だけSling位置を内側に変えていけば、その分だけ重量は増していきます。
距離x重量= (・・・) =・・・・・
Y : X
という関係が、必ず成り立ちます。重量物荷役での基本中の基本です。ね、かなり理科っっぽいでしょ?
では、ちょっと捻って、@とBに関してはいかがでしょうか?吊り高さが異なります。
そうです。力の作用点は・・・・・で考慮されなけれななりません。左側を一定の位置に決めましたので、その位置を基準に・・・・・を見極めますと、@は・・・・・m、B・・・m離れているということになります。初心者のみなさんはよくこれを誤解して計算します。この図でBの位置吊る場合は、・・・・・に注意しなければなりません。SWL55tのSlingは使えないということになります。また同様Bの位置で上に・・・・・を付けるときもそのSling位置は・・
: ・・6の関係にしなければ、平衡して上がりません。
貨物の重心位置と、Lifting Pointの位置は決まっています。あとはきっちりSlingの・・・を算出し段取りすれば、吊った瞬間にピタリと重心位置を捉えるということになります。10cmでも間違うと貨物は傾きます。重心がずれるからですね。
単純でしょ?
2.張力の増加
重量物荷役では、SLING WIREの強度が非常に重要です。Lifting Pointに何トンの力が加わるかを検討し、それに見合ったSWL(Safety
Working Load)を備えたSlingを用意します。 |
 |
Wireの強度は、
SWL = ・・・・2 x ・・ /・・
D::Wireの径
3:・・・
6:・・・(外国では・・・を4や5としているところも多い)
で、求められます。船乗りには有名な算式ですね。
但し、この頃はHigh Tension Wireというのがあって、この計算よりかなり強い物ができている。例えば42.5mmWireでSWLが・・・tなどです。通常42.5mmWireですと、SWL・・t程度ですから、かなり強い。
また、貨物を吊る場合、Slingは左図のように必ず角度αをもってHook方向に立ち上がりますけれど、それによって・・・・分だけ張力が増します。40tの貨物としましょう。10t Slingを4本用意して、図のように巻き上げると強度が足らないということになります。
これが2つ目です。
|
|
3.Wire強度の減衰
重量物荷役をやる場合、手持ちのSling Wireを工夫して強度を作ります。太い径のSlingは高価だからです。 |
 |
減衰率は、
Eb=・・・・・・・・・・
D:回す方の径
d:Wireの径
の式で表されます。
いくらWireを、Doubleで取っても、ひっかける、或いは回す側の径が、Wireと同じになれば、減衰率は・・・・となって、その効力を失くします。図のようにダブルでとっていても、SWL
x ・・ とはならず、・・・・・で使用するのと強度が同じということです。
それどころか、Wire径より・・・・・と、Singleよりも・・・・・なってしまいます。逆にWire径の・・・倍あるものに懸けて使用する場合であっても、強度・・・倍ではなく、その・・・%にしかならないことも覚えておかなければなりません。 |
|
重量物を、お膳(・・・ または Round Turnという)で巻く場合には、 |
 |
左写真のように、・・・・・を付けて繋ぐようにしておかないと、玉掛けに往生します。
Wire Sling と、Soft SlingをShackleで繋いでいます。
この(繋ぐ)ときに、この・・・・・を考慮していないと、・・・を超えて使用したということになります。安全率もありますから、たぶんその時は大丈夫でしょう。しかし、Wire
Slingは何回も何回も再利用しますから、そんな荒い使い方をしているといつか事故になるやも知れません。
自分のときに事故になれば良いが、他人の担当の時にその無理が祟るようなことがあっては、気の毒ですね。 |
|
|
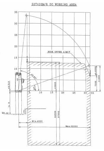
4.CRANEの巻しろを考慮する
重量物船のクレーンだからといって、どこまでも限界なしに巻けるわけではありません。 |

|

Lifting Rigging Implement |
貨物を吊って、船の中に入れるには、巻しろが重要です。Lifting Riggingが長くなりすぎては、巻き上げ切れません。クレーンには巻き上げられる限界の長さがあります。
・・・・・から、・・・・・までの間隔が巻しろです。左図のような・・・・・・・・・・から読み取れます。
Crane Hookから下、貨物Skidの底までの長さを、・・・・・にするように総Sling長さを決めます。計算で求められます。 |
|
5.SPREADER(カンザシ)を付けるか否か。
 |
重量物荷役で使用するSling Wireは太く重い。60mm-70mmとなってくると、1本で500kg-700kgとなってきます。到底一人で動かしたりはできないのですけど、貨物に玉掛けする場合も、Lifting
Point間が離れすぎていると、荷重をかけた瞬間から摩擦が効いてくるまでの間、・・・・・。人間が束になってかかっても留められない。
こういう場合は、・・・・・・・・・・(貨物をSlingで傷つける)などの不都合が生じます。そうですね、・・・・・・・・・・が限界でしょうか。(おおまかな限界数値は、Slingの重さ、重力、・・・、・・・・・・によって計算で求められる。)
でも実際のLifting Point間は、12mある。などのときにSPREADERを使用します。
|
写真は、8mのSpreaderを取り付けています。
|
| スプレッダーの利用例 |
 |
こちら番外です。
重量物荷役でSpreader(カンザシ)を付けて揚げる場合は、注意しないといけません。
1)偏荷重に Spreader を取り付ける。
2)Lifting Point の高さが異なる貨物に Spreader を取り付ける。
|
関連ページ
重量物荷役のポイント(GIFアニメ)
甲板強度 Deck Strength
長尺物の荷役
重量物の保定
|
上記の内容をフルスペックでご覧になりたい方は以下にてお願いします↓ |
 |
|
|
作者著書
|
 |